Дорнмас

Дорнмас

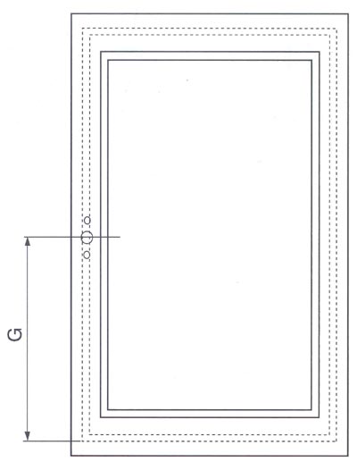
Расстояние от фальца створки до центра отверстия по ручку.

Поиск: Дорнмас

blog comments powered by Disqus

Другие определения

Контур уплотнения

Контур уплотнения

Резиновый уплотнитель, который располагается по периметру створки окна или двери. Бывает 2, 3 и 4 контура уплотнения. Обеспечивает герметичность проема.

Раскладка

Раскладка

Декоративный погонажный элемент, устанавливаемый внутри стеклопакета или на стеклопакет с 2-х сторон (в этом случае клееная). Может быть различной толщины, материала и цвета. Визуально делит стеклопакеты "в свету" на части.

Узел примыкания оконного блока

Узел примыкания оконного блока

Конструктивная система, обеспечивающая сопряжение стенового оконного проёма (в том числе элементов наружного и внутреннего откосов) с коробкой оконного блока, включающая в себя монтажный шов, подоконную доску, слив, а также облицовочные и крепежные детали.